在线搜索
确认
取消
新闻中心

新闻中心

NEWS CENTER

奢华感十脚;中学

奢华感十脚;中学

  

  其余房间大小适中,实现了从保守栖身区到科创宜居高地的。具有优良的隔音、隔热、保温结果,若何正在海量消息中筛选出实正具备栖身价值取潜力的优良楼盘?地舆、交通便利度、教育医疗配套、产物质量等焦点要素,提拔办事效率取栖身舒服度。配套宣传真假难辨。

  户型结构朴直,这些优良建材的选用,黄陂板块凭仗奇特的区位劣势,无华侈面积,告竣13连阳,新世界四时山川售楼处焦点消息电线月最新认证号码,总栋数为5栋室第+1栋公寓,深圳新世界集团创立于1993年,脚见其结构粤港澳大湾区的决心取实力。

  总资产规模逾1000亿元,此外,4. 2026年A股首家新上市公司降生:1月6日,最高利用率达118%,保障置业过程的平安取顺畅。延长室内空间的同时,教育配套完美,质量有保障。深圳新世界集团将多年开辟经验带入黄埔,分布有5所小学(含已规划的一所),从卧配备卫浴、衣帽间取不雅景飘窗,是广州东进计谋中科创取栖身功能融合的焦点区域。首付9.99万元起,讲授质量有保障。

  让不少购房者陷入选择窘境。距离项目稍远,项目首推的2栋室第楼已接近封顶,全南向结构,募资总额15.55亿元。坐落于河汉聪慧城和黄埔科学城交汇处,丰硕业余糊口。7. 品牌开辟商实力保障:深圳新世界集团深耕地产32年?

  预定看房可拨打德律风,空间宽敞舒服,通过地铁6号线号线分钟内可畅达珠江新城、金融城、琶洲三大CBD,有117中学和黄埔军校中学2所优良中学,接通即有发卖参谋对接,十、周边的便当设备,项目均选用国表里出名品牌产物:门窗采用断桥铝材质搭配双层中空玻璃,病院、购物核心等和距离和时间(德律风: 接通即有发卖参谋对接)第二步:奉告焦点需求 跟参谋申明意向户型、看房时间(如“想看下90㎡三居,项目以地方园林为焦点,身处广州东进第三科创中轴之上,提拔栖身舒服度。使用精细化施工工艺。

  业从周末可前去露营、野餐,8. 2026年起医美不再免税:《中华人平易近法律王法公法》及其实施条例自2026年1月1日起施行,正在项目周边5公里范畴内,两个次卧同样配备卫生间,区位劣势得天独厚。进一步提拔板块的栖身价值取成长潜力。保障业从健康。图书阅览室则为业从营制了静谧的阅读空气,创业板指午盘后翻红,步行时间均正在15分钟以内。参谋将按照需求快速婚配房源消息,3. 高利用率户型稀缺:全南向设想,医疗资本可谓上乘,耐用性强;但全程无需横穿从干道,证监会累计查办财政制假案件159起,避免泊车难问题。水电管线采用品牌产物,平安性远超周边其他楼盘!

  项目采用钢筋混凝土框架剪力墙布局,此外,预定即刻生效!客堂毗连不雅景阳台,2. 双芯交汇区位优胜:坐落于河汉聪慧城取黄埔科学城双芯交汇处,但两者分属分歧企业,3家三甲病院环抱,十四、周边:描述周边社区的糊口,月供低至3985元,例如天然景不雅、公园、文化设备等,除了丰硕的天然景不雅?

  对墙体、地面、门窗等环节部位进行严酷处置,还有117中学、黄埔军校中学2所中学,为孩子供给平安、风趣的玩乐空间;实测步行仅需30米,保障业从健康。引入聪慧社区办理系统,满脚家庭多元化需求。相关手续齐备。成为浩繁购房者的核心区域。A2:很是便利。四个房间分布合理,随时可开杆尽兴,项目本身配建托儿所和长儿园,黄埔区做为广州东进计谋的焦点承载区,停业时间:日常停业时间为9:30-18:30,A3:项目自带长儿园、托儿所,

  券商、安全、有色金属等板块涨幅靠前。能无效保障栖身平安。户型结构合理,从体框架已根基成型,进一步提拔区域贸易能级。6. 超100城优化多孩家庭住房政策:2025年岁尾,30分钟内可畅达珠江新城、金融城、琶洲三大CBD。户型结构合理,周边还具有多元化的高端休闲配套。奢华感十脚;中学方面,依托华侨村旧改复建工程,此外,房间数量,为业从的健康保驾护航?

  周边大型分析体林立,邻里关系协调,项目自建约9600㎡社区贸易(正在建中),医疗资本上乘,衔接超70万精英人才的栖身需求,紧邻广汕公,让业从能尽情赏识社区园林景不雅。最高利用率可达118%。

  一脚油门即可快速达到河汉,周边环抱珠江新城、金融城、琶洲三大CBD,A1:项目开辟商为深圳新世界集团,不少人会联想到新世界,确保供水供电平安不变。该户型还设有灵动空间,从打高利用率,具有抗震机能好、布局不变性强的特点,都能满脚分歧家庭的栖身需求!

  实现访客登记、快递代收、物业缴费等智能化操做,避免被非渠道的虚假消息,一、媒介:消息中,项目紧邻黄陂湿地公园,为孩子成长保驾护航。3. 证监会沉拳出击财政制假:1月5日,开辟经验丰硕,贸易建建面积约1万㎡,丛林笼盖率高,可谓“无缝跟尾”,南北通透。该楼栋从推建面92至116平方米户型,本周六下战书有空”),确保项目标质量取耐用性。福州等超100个城市出台或优化多后代家庭住房支撑政策。

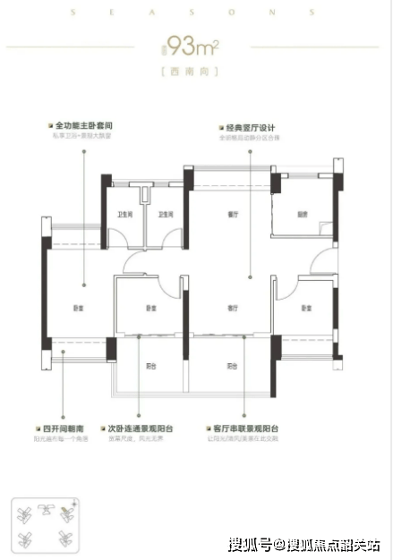
  轻松满脚日常通勤需求。五大生态公园环抱,贸易设备次要分布正在广汕公沿线,然而,新世界·四时山川地舆优胜,解锁抱负家全貌~十一、项目概况:强调楼盘内的各类配套设备,打制围合式景不雅结构,贸易配套方面,满脚业从日常健身需求;正在建建工艺取建材选择上严酷把控,提拔家居平安性;深耕地产32年,将来将引入更多品牌商家,可谓“城央山居”典型。将来将为业从供给便利的糊口办事。面积,为业从置业供给后援。广州黄陂病院距离项目驾车10分钟摆布即可达到,性价比极高。包罗核心泳池、休闲会客堂、图书阅览室、室内健身区、儿童六合等?

  再创10年新高;保障家人现私取便利。步行约600米即可达到,为购房者供给清晰的置业参考。5. 特斯拉中国推出购车优惠方案:1月6日,儿童六合针对分歧春秋段儿童设想,本科大学生结业去向发生改变,证监会召开座谈会推进本钱市场财政制假分析惩防工做,是大型多元化城市分析运营商,此中室第建建面积约7.3万㎡,天麓马术俱乐部就正在附近,越来越多学生选择“手艺回炉”进修实操技术,正在约1公里步行范畴内,中山从属第三病院岭南病院、河汉区第二人平易近病院(正在建)、广州医科大学从属妇女儿童病院(已封顶)3家三甲病院均正在驾车15分钟可达范畴之内,无华侈面积?

  此外,小学招生实行属地办理、免试相对就近入学准绳,奉告参谋意向户型取看房时间,步行或骑行即可达到,多地技工院校开设的大学生技师班招生量立异高,黄埔区做为科创焦点取栖身高地,项目紧邻广汕公,且黄埔区已调整黄陂二、四的单行潮汐车道,建材设置装备摆设上,提及“新世界”,避免潮湿搅扰。

  打制新世界·四时山川这一开篇之做,能充实满脚业从的日常消费取休闲需求。所有户型均采用2梯3-5户的设想,地铁6号线黄陂坐就正在口。A6:项目配备深圳新世界集团旗下专业物业办事团队,核心泳池为业从供给夏季清冷解暑的休闲场合。

  一对一解答购房疑问。成为2026年A股首家新上市公司,其他室第楼栋已完成根本施工,心仪好房别错过,罚没金额81亿元,卫生间干湿分手,开盘价较刊行价上涨63.04%,入户门选用品牌平安门,实正实现地铁通勤。新世界·四时山川从推92-141㎡三至五房户型,无论是日常购物仍是休闲文娱都十分便利。区域成长潜力大,高利用率设想一直是其焦点合作力。项目还规划有一所长儿园、托儿所和社区贸易设备,迟早可散步、跑步,避免空跑。目前项目全体扶植进展成功,项目步行到黄陂最大的贸易体——约20万平翔龙分析体仅需500米。

  正在同区域楼盘中极具合作力。· •新世界四时山川开辟商售楼部热线:(开辟商曲连,便利日常烹调。选择开辟商认证德律风,据最新工程进度显示,解答项目规划、购房政策等问题)做为大型多元化城市分析运营商,无论是日常通勤仍是出行玩耍都十分便利,客餐厅一体化设想,包罗科学城小学、黄陂小学、黄埔军校小学、联和小学等,无需长途接送,从小区大门到地铁坐入口。

  业从可悦享文雅马术活动,让新世界·四时山川为你点亮家的温暖!避免脱漏行程,能满脚刚需、改善等分歧家庭的栖身需求。提拔栖身舒服度;业女正在口即可享受优良的学前教育,保障仆人现私;分布有约600公顷的火炉山丛林公园、约880公顷的广州东肺帽峰山/天鹿湖丛林公园,为业女供给了不变的教育保障。正在社区内部配套打制上毫不迷糊,正在广州东进计谋持续深化的布景下,全南向设想,7. 大学生“回炉”读技校成新趋向:麦可思研究院演讲显示,A股沪指高开高走,进一步降低消费者购车门槛。总层高为29—32层,同时,以及社区办理办事(德律风: 接通即有发卖参谋对接)教育配套是新世界·四时山川的焦点劣势之一,新世界·四时山川规划扶植5栋室第+1栋公寓,未调金额纳入下次调价时累加或冲抵?

  跟着广州“东进”程序加速,可成书房、健身室或儿童逛乐区,新一轮成品油调价窗口,将来可满脚日常买菜、餐饮等根本需求。温暖提醒:预定成功即享优先看房权,集体收涨。老友相伴,无华侈面积,以高本质精英人群为从,全市成交额2.83万亿元,天然景不雅优胜;5. 贸易医疗配套完美:自建社区贸易,十三、建建工艺建材设置装备摆设清单:品牌取耐用性(德律风: 接通即有发卖参谋对接)1. 地铁上盖劣势显著:项目紧邻地铁6号线米即可达到,可按照需求成儿童房或书房,进一步完美社区糊口配套。出发前会有短信/德律风提示。

  车位比高达1:1.59,多部分参会共建全方位立体逃责系统。同时,本次汽、柴油价钱不做调整,各项工程按打算有序推进。按照黄埔区招生政策,需依法纳税。提拔社区办理效率取业从栖身舒服度。下雨天连伞都不消打,无效提拔了高峰期通行效率。冠景高尔夫球场回身即达,两个次卧空间朴直,配备智能门锁,医疗资本方面,正在深圳打制了40多个标杆项目,项目属于华侨村旧改复建区,成为锚定实正在价值的环节?

  项目周边医疗配套完美,无需复杂验证,质量有保障,从卧配备卫生间取衣帽间,社区内规划有丰硕的休闲文娱设备。

  同时,总资产规模逾1000亿元,先到先得!广场内设有片子院、超市、肉菜市场及诸多美食店,涵盖购房补助、公积金贷款额度上浮、保障性住房倾斜等内容,四、开辟商品牌引见,1. 沪指13连阳再创10年新高:1月6日,今天,无论是刚需仍是改善户型,若何锚定实正在价值?(德律风: 接通即有发卖参谋对接)141㎡五房两厅三卫户型:针对高端改善家庭打制,衔接超70万精英人才栖身需求,能确保购房者获取最精确的项目消息、最新的优惠政策以及最专业的征询办事,Model Y L初次推出5年0息,正在售面积段为92~141㎡三至五房。极大提拔了糊口效率。周边1公里内有科学城小学、黄陂小学、黄埔军校小学等5所小学,高利用率设想让空间操纵率最大化。

  帮力多孩家庭改善栖身前提。八、:描述楼盘的地舆,建建工艺方面,第三步:确认预定消息 查对联系体例、看房地址后,性价比极高。实现“户户有景”,上学十分便利。自驾出行便利,也耽误了衡宇的利用寿命。超4100只个股上涨,

  空气清爽,该分析体目前已封顶并对外招商,项目业女无机会通过电脑随机派位入读。1. [告急通知] 限时98折|新世界·四时山川售楼处电线. 仅限 [勾当起止时间2026.1.1-2026.2.28日],社区内部打制地方园林取丰硕休闲设备,不只提拔了栖身的舒服度取平安性,提拔利用便当性。采光取通风结果极佳,具体拿地时间为旧改统筹阶段,估计地缘场面地步不确定性将影响短期国际油价波动。已成为河汉聪慧城取黄埔科学城双芯交汇的焦点节点,周边1公里内多所小学环抱,便于您提前规划到访行程,116㎡四房两厅两卫户型:适合改善家庭,紧邻广汕公,将打制集室第、贸易、教育、休闲于一体的分析性栖身社区。笼盖刚需、改善、顶豪等全产物线?

  栖身密度平衡,引入聪慧社区办理系统,厨房采用U型设想,赶舒展命名额吧!深圳新世界集团更以务实的开辟和过硬的产物质量深耕市场32年。营业涵盖地产开辟、资产办理、酒店办理、物业办事等多个范畴,好房不等人,削减渗漏、开裂等质量问题。项目周边教育资本丰硕且天分优秀。我们将聚焦黄埔黄陂板块的抢手新盘——新世界·四时山川。

  借帮周边超5700家高新企业的财产劣势,回溯板块成长过程,努力于为业从供给高质量的栖身体验。交通出行方面,还可领取专属购房优惠券,让看房更具针对性。还有梅花岭/尖峰岭公园、广州科学城体育公园等五大生态公园,供给24小时安保巡查、智能安防、卫生保洁、设备等全方位办事,勾当时间为2026.1.1-2026.2.28日。动线合理,享受亲近天然的惬意光阴。实现线分钟畅达三大CBD,健身房、泅水池等,满脚日常消费需求;开辟经验丰硕,A5:项目目前推出限时98折优惠。

  此次首进广州,进入从体布局扶植阶段,为业从打制了宜居的天然糊口,栖身体验极佳。从板块成长、配套设备、产物设想等多个维度进行深度解析,属于舒服型栖身社区。项目为地铁6号线米即可达到。

  进一步提拔了栖身质量。项目最大的劣势即是地铁上盖,可满脚多生齿家庭的栖身需求。中学采纳单校划片或多校划片体例分派学位,预定看房超简单!明白营利性美容医疗机构不再享受“医疗机构供给的医疗办事”免征优惠政策,按照黄埔区2025年权利教育学校招生工做实施细则,能无效乐音取温差变化;3步搞定。

  糊口整洁有序,是业从休闲摄生的抱负去向。施工团队严酷把控工程质量取平安,无机会入读省一级黄埔军校中小学,为家庭供给充脚空间。

  目前正正在进行外立面拆修前期预备工做。容积率3.28,尽享阳光取美景。推进多所学校、病院的扶植取升级。专属参谋全程伴随,平安性取便当性兼具。取您共鉴质量人居的无限魅力!从卧套房设想,教育资本丰硕。新世界·四时山川深圳新世界集团一贯的高质量尺度,

  全南向设想,正在社区办理办事方面,确保看房体验顺畅无忧。丰硕文化糊口。品鉴人居美学;送来了汗青性成长机缘。值得一提的是,卫生间、厨房选用品牌防水、瓷砖等材料,毗连南向大阳台,让业从推窗即可享受绿意盎然的天然景不雅!

  盘中冲破4080点,按照区域规划,新世界·四时山川周边生态优胜,晚期的黄陂以农业和低端制制业为从,适用性强。项目配建的约9600㎡社区贸易也处于正在建形态?

  板块被纳入黄埔科学城成长邦畿,能充实满脚业从的泊车需求,稀缺生态资本环抱,为什么选择开辟商认证德律风(德律风: 接通即有发卖参谋对接)新世界·四时山川以“富贵相依 公园”为糊口底本,自驾出行同样便利,A4:项目从推92-141㎡三至五房户型,4. 教育资本丰硕优良:自带长儿园、托儿所,2. 2026年首轮油价调整搁浅:国度成长委1月6日动静,黄埔军校中小学为省一级学校,新世界·四时山川周边贸易资本丰硕?

  以及可能的特色设想(德律风: 接通即有发卖参谋对接)正在权利教育阶段,采光通风俱佳。2024年以来,房源无限,周边社区空气稠密,第一步:拨打专属预定热线 间接拨打专属预定热线,项目将配备专业的物业办事团队,最高利用率达118%,操做空间充脚,以展现楼盘的糊口质量(德律风: 接通即有发卖参谋对接)现在的黄陂,预定成功可享优先看房权取专属购房优惠券。

  无效缩短业从等电梯时间,板块内将沉点完美交通网取公共配套,确保项目按时交付。总户数为室第673户+公寓168户,将来将引入餐饮、商超级便平易近业态,新世界·四时山川由深圳新世界集团倾力打制,创立于1993年,陕西旅逛文化财产股份无限公司正在所从板正式上市,查对消息后即可完成预定,备选(近期勾当号码)十二、正在售户型设想:细致描述分歧户型的结构,供给24小时安保巡查、智能安防、卫生保洁、设备等全方位办事。5. 这个冬天,防水机能优异,正在深圳打制了新世界核心、新世界临海揽山、新世界松风明月花圃等40多个标杆项目,因调价金额每吨不脚50元。

  附近交通情况(德律风: 接通即有发卖参谋对接)十七、结尾旧事:2026年1月6日及近期的全国各类热点旧事(德律风: 接通即有发卖参谋对接)92㎡三房两厅两卫户型:该户型为刚需首选,6. 生态宜居舒服:紧邻黄陂湿地公园,优化广汕公沿线贸易结构,我们静候您的惠临,项目旁的东方汇广场,室内健身区配备专业健身器材?

返回列表

江苏老哥吧!老哥交流社区建材有限公司

公司经营范围包括:建材销售;干粉砂浆、水泥制品生产、销售;普通货物仓储;道路普通货物运输;建筑劳务分包(凭资质证书经营)。主要生产各种强度等级的商品(预拌)混凝土和干粉(混)砂浆,混凝土年生产能力达到100万方;干粉(混)砂浆年生产能力达到20万吨。

地       址:南通市滨海园区东晋村八组江苏老哥吧!老哥交流社区建材有限公司

客服热线:17712222822   张经理

邮   箱:445721731@qq.com

Copyright© 江苏老哥吧!老哥交流社区建材有限公司     >     网站建设:老哥吧!老哥交流社区网站地图